Golf Club Gastronomie

Nördlicher Park 21, 61231 Bad Nauheim, Deutschland

Auf der Karte ansehen

507 Ansichten

 Matthias  Hess

Matthias Hess

Golf Club Bad Nauheim e.V.

00496032928330

Allgemein

Objekttyp

Restaurant/ Gaststätte

Pacht- / Kaufobjekt

Pacht

Gesamtfläche Grundstück

180.000 m²

Gesamtfläche Objekt

360 m²

Energieausweis

wird nachgereicht

Getränkebezugsverpflichtung

Bitburger
bis 12.2028
Pilsmarke: Bitburger

Konditionen

Pachtpreis

2.000 € Verhandlungsbasis

Kaution

10.000 € Verhandlungsbasis

Details

Bausubstanz

Guter Zustand

Denkmalschutz

Ja

Ausstattung im Überblick

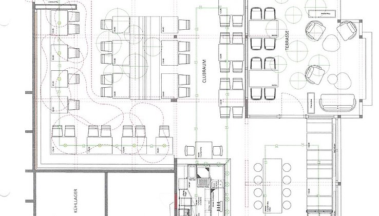
Gastraum

180 m² 80 Sitzplätze

Nebenzimmer

25 m²

Terrasse

250 m² 120 Sitzplätze

Parkplatz

60 Parkflächen

Beschreibung der Ausstattung

Der Gastraum und die Terrasse sind voll möbliert. Die Küche und der Tresen sind mit Elektrogeräten usw. ausgestattet.

Beschreibung des Objekts

Einzigartige Alleinlage und trotzdem zentral, in unmittelbarer Nachbarschaft zum Stadtpark und dem Eisstadion.

Lagebeschreibung

Fussläufig zur Innenstadt, unmittelbar am Stadtpark und Eisstadion liegend, befindet sich der zur Rede stehende gastronomische Betrieb. Das Herzstück einer der ältesten Golfplätze Deutschlands, ist das 1904 errichtete Clubhaus, in dem sich auch die Gastronomie befindet. Das Clubhaus wurde in 2025 umfangreich saniert (Dach und Fach). Durch die umliegenden Kliniken, das Eisstadion, Hotels und natürlich auch die Nähe zur Innnenstadt, ist dieses historische Clubhaus mit seiner einzigartigen Terrasse inmitten einer Parkanlage, ein immer wieder gern besuchter Platz für die Bad Nauheimer, Spaziergänger und Kurgäste. Ergänzt wird es durch die Mitglieder und Gäste der Sportanlage, die das Clubhaus als ihre zweite Heimat ansehen und hier nach den Golfrunden einkehren. Zahlreiche Veranstaltungen der Clubmitglieder finden jedes Jahr statt und ergänzen das umfangreiche Clubleben.

Cookies akzeptieren

Um die Adresse auf der Karte über Google Maps zu sehen, müssen Sie Komfort-Cookies akzeptieren

Cookie-Einstellungen

Anbieter kontaktieren

Sie haben Fragen zum Objekt? Kontaktieren Sie hier den Anbieter des Objektes direkt.

Matthias Hess

Golf Club Bad Nauheim e.V.

00496032928330

Ihr Ansprechpartner bei der Bitburger Braugruppe

Wir unterstützen Sie gerne bei konzeptionellen Fragen und beraten Sie rund um unser Portfolio und unsere Marken. Mit der Bitburger Braugruppe haben Sie einen kompetenten Partner an Ihrer Seite.

Daniel Jung

Gebietsverkaufsleitung Außer-Haus-Markt

+49 172 6513043 Jetzt kontaktieren